Brandschutz-Ertüchtigung Uni-Klinikum

Für die denkmalgerechte Sanierung der Gebäudeteile D und E der Universitätsklinik Halle (Saale) entwickelten wir ein maßgeschneidertes Brandschutzkonzept, das historische Substanz und moderne Nutzung sicher vereint. Im Fokus standen die komplexen Überschneidungen der Baukörper sowie die besonderen Anforderungen eines denkmalgeschützten Klinikgebäudes.
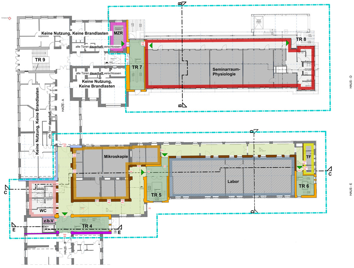
Künftig nutzen verschiedene Institute die Flächen für Büro-, Aufenthalts- und Laborräume, ergänzt durch neue Technikbereiche für Versorgung, Sicherheitstechnik und Raumklima.
Zentrale Maßnahmen des vorbeugenden Brandschutzes waren neue Stahlbetondecken, klar strukturierte Nutzungseinheiten und die Integration notwendiger Treppenhäuser als bauliche Rettungswege. Eine zusätzliche Brandwand verhindert den Brandüberschlag innerhalb des Gesamtkomplexes.
Die bestehende Brandmeldeanlage wurde auf Kategorie I mit Feuerwehraufschaltung erweitert und durch Sicherheitsstromversorgung sowie Sicherheitsbeleuchtung ergänzt. Abgerundet wird das Konzept durch eine neue Brandschutzordnung Teil A–C in enger Abstimmung mit der Brandschutzdienststelle.



