Brandschutz-Ertüchtigung im Plattenbau

Als erfahrene Brandschutzplaner haben wir die brandschutztechnische Ertüchtigung dieses Wohnhochhauses in Hermsdorf erfolgreich umgesetzt.
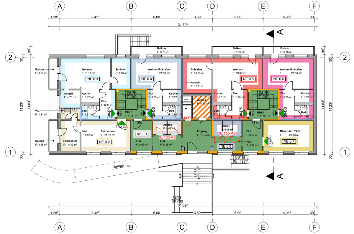
Aufgabe war die Erfüllung der Schutzziele der Thüringer Bauoordnung – also ein umfassender Gefahrenabwehrschutz für Bewohner und Einsatzkräfte.
Die Maßnahme umfasste die Optimierung der Außenhülle, risikoorientierte Sanierung, die Schaffung sicherer Rettungswege sowie den Rauch- und Wärmeabzug.
Wir koordinierten Objektplanung, Genehmigungen und Umsetzung zu einer normkonformen Lösung. Die abgeschlossene Ertüchtigung erfüllt zuverlässig das Schutzziel und erhöht die Sicherheit deutlich.




Projekt-Steckbrief
Standort:
Werner-Seelenbinder-Straße in Hermsdorf
Auftraggeber:
TAG TSA Wohnimmobilien GmbH Hamburg
Planungsumfang:
LPH 3-4 AHO
Planung:
2023
Wohnfläche:
56 Nutzungseinheiten