Brandschutz und moderne Bankarchitektur

Im Herzen von Weißenfels lieferten wir für die Neugestaltung und Modernisierung der Hauptgeschäftsstelle der Sparkasse Burgenlandkreis nicht nur die Objektplanung, sondern gleichzeitig auch die maßgeschneiderte Brandschutzplanung.
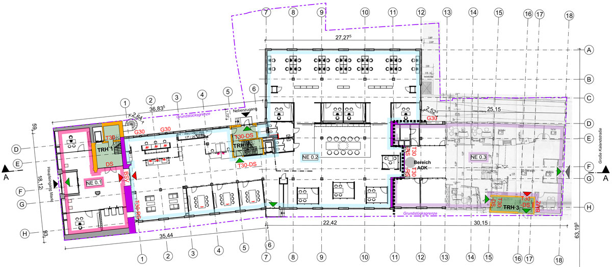
Das Ensemble aus historischem Altbau und moderner Erweiterung stellte hohe Anforderungen an die Abstimmung von Architektur, Nutzung und vorbeugendem Brandschutz.
Durch die klare Gliederung in zwei Brandabschnitte und die Trennung mittels Brandwänden wurde eine sichere und zugleich flexible Gebäudestruktur geschaffen. Drei notwendige Treppenräume gewährleisten kurze und sichere Rettungswege für Mitarbeitende und Besucher. Die großen Nutzungseinheiten erlauben eine zukunftsfähige Anpassung der Flächen, ohne die brandschutztechnischen Anforderungen aus dem Blick zu verlieren. Ergänzend sorgt der anlagentechnische Brandschutz mit Brandmeldeanlage und direkter Aufschaltung zur Feuerwehr für ein hohes Sicherheitsniveau. Ein Brandschutzvorhang im Erdgeschoss unterstützt zusätzlich die kontrollierte Evakuierung.
So verbindet das Projekt moderne Bankarchitektur mit einem ganzheitlichen und leistungsfähigen Brandschutzkonzept.


