Planung mit Weitblick


In ruhiger Wohnlage der nördlichen Innenstadt von Halle (Saale) entstand ein fünfgeschossiges Wohngebäude mit 18 Wohneinheiten in zweiter Reihe.
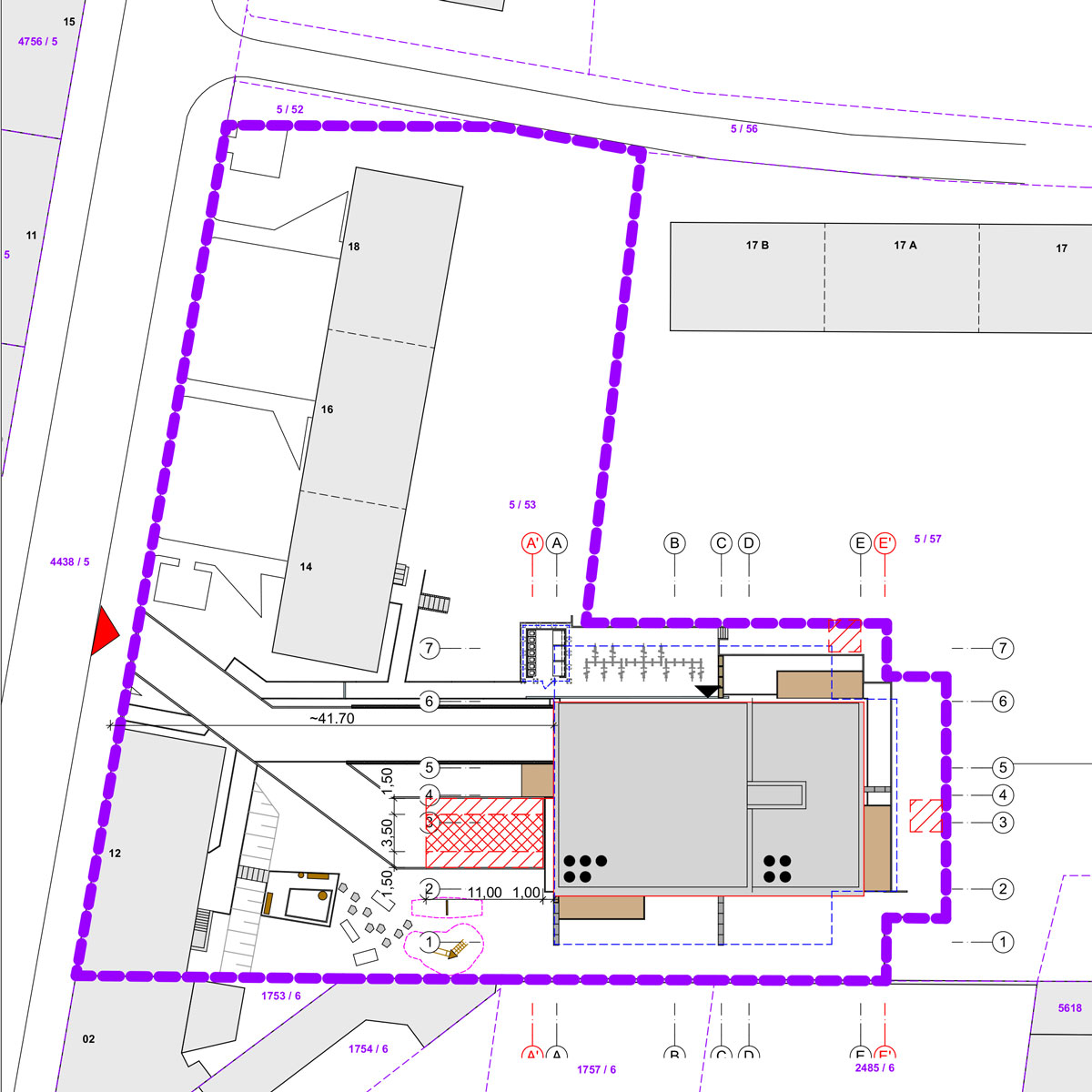
Durch ein geschicktes und schlüssiges Brandschutzkonzept gelang es uns in unserem siegreichen Wettbewerbsbeitrag, den Neubau unter Einhaltung der Abstandsflächen optimal auszudehnen und einen Entwurf mit maximaler Wohnfläche vorzulegen.
Alle Wonungen sind kreisförmig um ein innenliegendes Treppenhaus organisiert, welches im Brandfall so lange wie möglich rauchfrei gehalten werden kann. Für den vorderen Gebäudeteil kann die Personenrettung im Brandfall durch die Fahrzeuge der Feuerwehr erfolgen, während für den hinteren Baukörper individuelle Anleiterflächen realisiert wurden. Damit erfüllen wir die Vorgaben der Bauordnung schaffen die Grundlage für eine sichere Evakuierung und wirksame Löscharbeiten.
Das Projekt zeigt, wie durch frühzeitige Brandschutzplanung architektonische Qualität und optimale Grundstücksauslastung vereint werden können.

