Plattenbausanierung mit Brandschutz-Update

Für die beiden baugleichen Wohnhochhäuser vom DDR-Plattenbau-Typ P2 entwickelten wir im Zuge der energetischen Sanierung neben der gesamten Objektplanung auch eine maßgeschneiderte Brandschutzplanung.
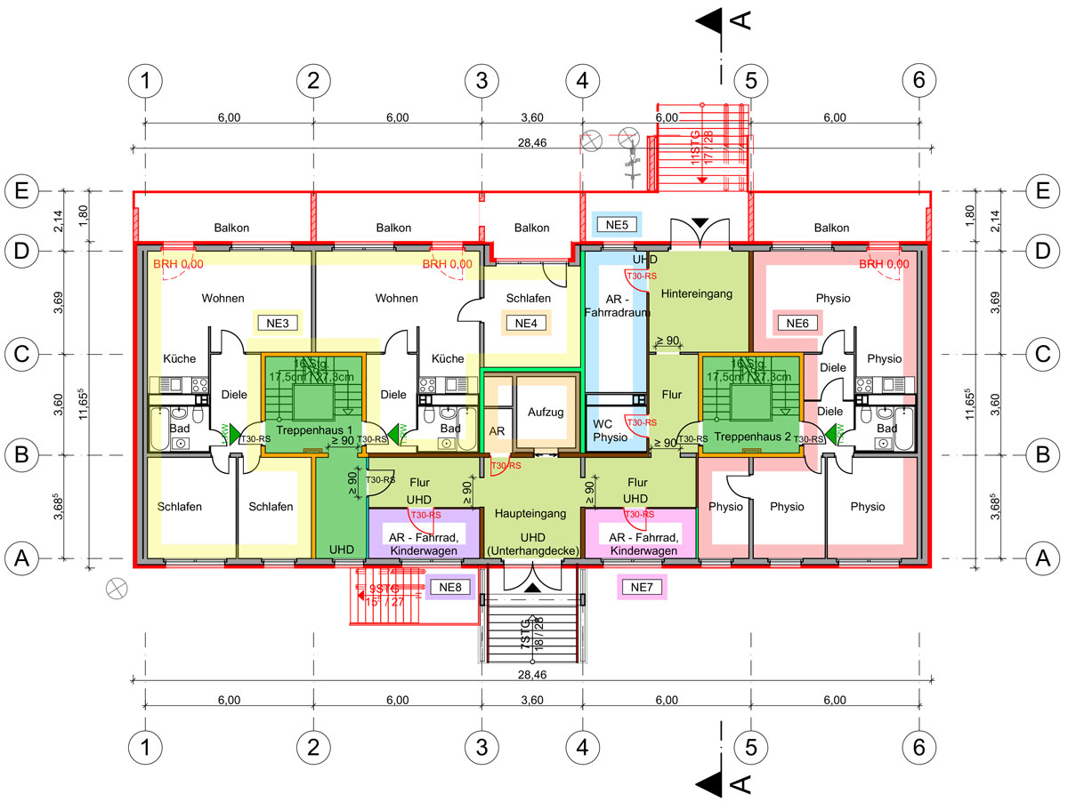
Im Fokus stand die sichere Evakuierung der Bewohner über zwei bauliche Rettungswege – eine besondere Herausforderung, da der verbindende Rettungsgang nur in drei Etagen vorhanden ist. Ergänzend zur neuen Balkonanlage aus Stahlbeton-Fertigteilen entlang der Westfassade wurden gezielte brandschutztechnische Maßnahmen integriert. Durch den Einbau feuerbeständiger Türen in Abstellräumen und Lobby sowie einen zusätzlichen Hinterausgang im Erdgeschoss konnte die Sicherheit entscheidend erhöht werden.
Das Ergebnis ist ein belastbares Brandschutzkonzept für den Sonderbau, das Bestand, Nutzung und Zukunftsfähigkeit vereint.
Als Fachplaner für vorbeugenden Brandschutz entwickeln wir genehmigungsfähige Lösungen, die Sicherheit schaffen und kostenoptimierte Sanierungen verlässlich ermöglichen.



